<delect id="tfnk8"><kbd id="tfnk8"><tbody id="tfnk8"></tbody></kbd></delect>

    1. <em id="tfnk8"></em>

      1. <em id="tfnk8"></em>

        1. <em id="tfnk8"></em>

            <div id="tfnk8"></div><em id="tfnk8"></em>
          1. <div id="tfnk8"><label id="tfnk8"><nav id="tfnk8"></nav></label></div>

            歡迎您來到成都鑫川電機電設備有限公司官網,我們將竭誠為您服務!

            鑫川電 八年專注

            智能配電系統一站式解決方案

            全國服務熱線:

            400-891-9991
            18084864177

            行業動態

            首頁 > 新聞資訊 > 行業動態

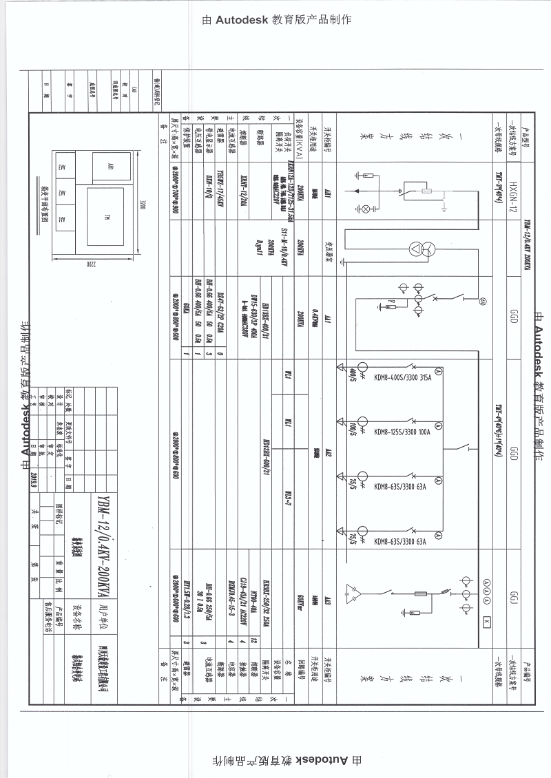
            成都200kva箱式變電站系統圖

            來源:鑫川電    日期:2019-09-10    瀏覽量:載入中...

            成都鑫川電機電設備有限公司設計的200kva箱式變電站圖紙包含一次線方案圖、箱式變電站平面布局結構、箱變尺寸等參數、本公司設計的圖紙根據客戶需求選擇合適方案、歡迎來電垂詢!成都200kva箱式變電站系統圖

            轉載請注明地址:http://www.lygbjz.net/

            xFgIpJ0WVVqOYOytgMi1kdTFZu0x/tt1dOynK1Y04G4DzukidyvDNz3ujOc/+xSD9Dokt8Mj/9a5GDEma0IfOud4SqU7qUG9014Uq7YJg1//b31znI04eJbp8ApVjjODrhomygt13adNTWfYPDEYqUp4aZ8M4BCo2D65vW4c6htsECT/Iu2oS9ju0PT8OW2zzSgLfGObxpB4VR6EdRYQ7w==
            <delect id="tfnk8"><kbd id="tfnk8"><tbody id="tfnk8"></tbody></kbd></delect>

            1. <em id="tfnk8"></em>

              1. <em id="tfnk8"></em>

                1. <em id="tfnk8"></em>

                    <div id="tfnk8"></div><em id="tfnk8"></em>
                  1. <div id="tfnk8"><label id="tfnk8"><nav id="tfnk8"></nav></label></div>

                    久久亚洲国产成人影院